Vous souhaitez nous rendre visite ? Cela est possible UNIQUEMENT sur rendez-vous via notre site web personnel : WWW.STRUCTURA.BE.
(Disponible 24h/24 et 7j/7 tant que les réservations ne sont pas complètes) Via le bouton : «Planifier une visite».
Il n'est pas possible de réserver par téléphone ou via des sites web externes!
Appartement duplex avec troisième chambre mansardée (accessible via escalier escamotable) et garage, à proximité du centre d’Opwijk!
Vous recherchez un appartement duplex idéalement situé près du centre d’Opwijk?
Cet appartement combine confort, fonctionnalité et situation idéale.
Premier étage:
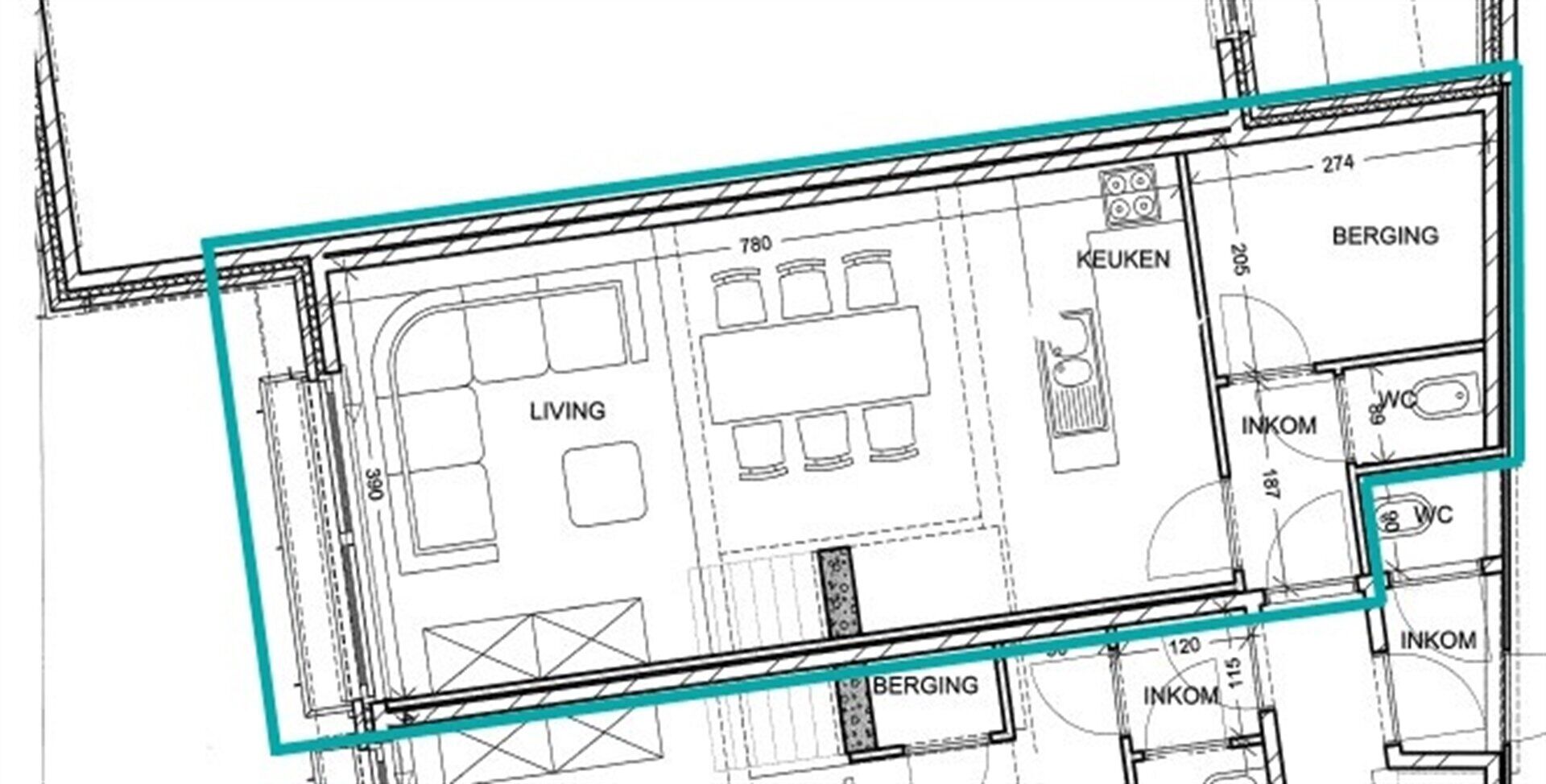
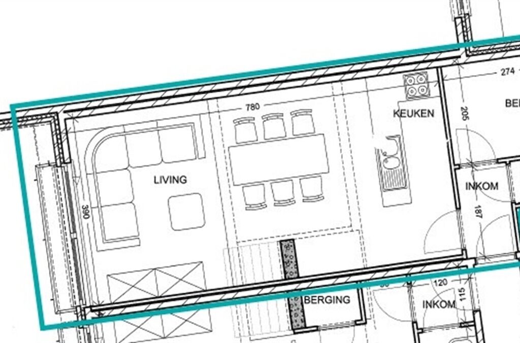
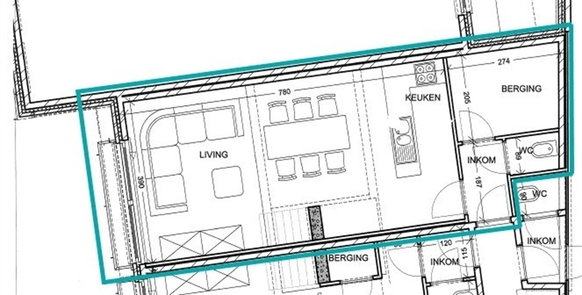
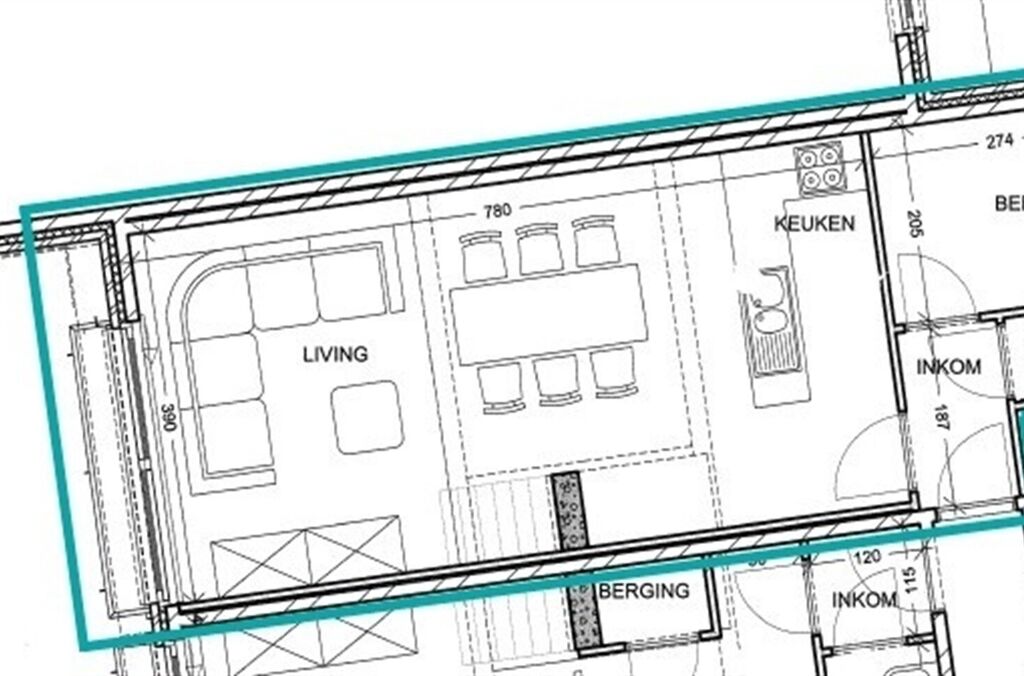
Vous entrez par un hall d’accueil avec toilette séparée et buanderie pratique.
Le séjour lumineux avec cuisine ouverte constitue le cœur de l’appartement.
Deuxième étage :
Le hall de nuit donne accès à deux chambres, une salle de bains équipée et une grande terrasse où vous pourrez profiter pleinement de l’extérieur.
Espace supplémentaire :
Par une escalier escamotable vers le grenier, vous accédez à une troisième pièce polyvalente et chauffée, idéale comme chambre supplémentaire, bureau ou salle de loisirs.
Garage obligatoire à louer pour 75 €/mois. Charges communes provisionnelles de 75 €/mois. Chauffage central au gaz. Libre immédiatement.
Atouts supplémentaires:
• Local à vélos commun
• Appartement économe en énergie – PEB B (129)
• Électricité conforme
• L’appartement vient d’être entièrement repeint en blanc!
Saisissez cette occasion unique et découvrez tout le potentiel de ce superbe duplex!
(Disponible 24h/24 et 7j/7 tant que les réservations ne sont pas complètes) Via le bouton : «Planifier une visite».
Il n'est pas possible de réserver par téléphone ou via des sites web externes!
Appartement duplex avec troisième chambre mansardée (accessible via escalier escamotable) et garage, à proximité du centre d’Opwijk!
Vous recherchez un appartement duplex idéalement situé près du centre d’Opwijk?
Cet appartement combine confort, fonctionnalité et situation idéale.
Premier étage:
Vous entrez par un hall d’accueil avec toilette séparée et buanderie pratique.
Le séjour lumineux avec cuisine ouverte constitue le cœur de l’appartement.
Deuxième étage :
Le hall de nuit donne accès à deux chambres, une salle de bains équipée et une grande terrasse où vous pourrez profiter pleinement de l’extérieur.
Espace supplémentaire :
Par une escalier escamotable vers le grenier, vous accédez à une troisième pièce polyvalente et chauffée, idéale comme chambre supplémentaire, bureau ou salle de loisirs.
Garage obligatoire à louer pour 75 €/mois. Charges communes provisionnelles de 75 €/mois. Chauffage central au gaz. Libre immédiatement.
Atouts supplémentaires:
• Local à vélos commun
• Appartement économe en énergie – PEB B (129)
• Électricité conforme
• L’appartement vient d’être entièrement repeint en blanc!
Saisissez cette occasion unique et découvrez tout le potentiel de ce superbe duplex!
finances
- Prix
- € 975 par mois
- Disponibilité
- Immédiatement
- Revenu cadastral
- € 897
- Charges locataire
- € 75 p/m
localisation géographique
- école de l'environnement
- 212 m
confort
- Interphone
- Oui
bâtiment
- Surface habitable
- 96 m²
- Année de construction
- 2004
- étage
- 1
- Nombre d'étages
- 2
- Type de toit
- Toit de selle
Tuiles
terrain
- Orientation terrasse
- Sud
énergie
- PEB
- 129 kWh/m²
- Code unique PEB
- 3424027
- Date certificat PEB
- 24 octobre 2024
- Type de fenêtres
- PVC
- Vitrage
- Double vitrage
- Inspection de l'électricité
- Oui, conforme
- Chauffage
- Gas
- Type de chauffage
- Individuel
garage
- Garage
- 1
aménagement
- Chambres
- 2
- Salles de bains
- 1
- Terrasse
- Oui
- Superficie terrasse
- 8 m²