Appartement bien entretenu et idéalement situé, au premier étage, avec une grande terrasse orientée sud-ouest. Accès aisé aux commerces, aux transports en commun et aux principaux axes routiers.
Aménagement
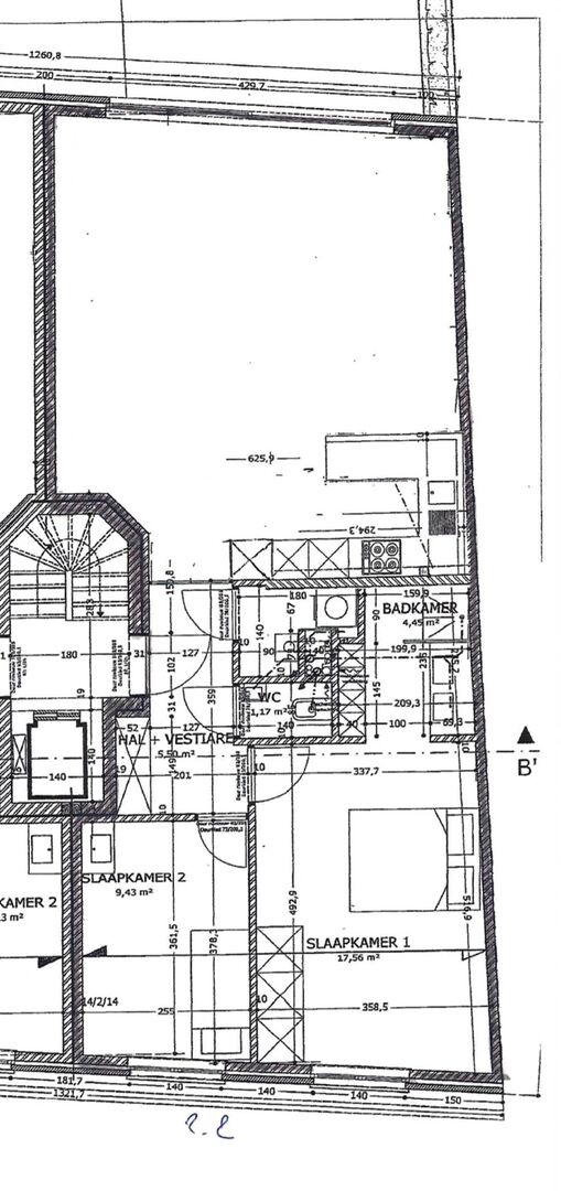
Deuxième étage :
Hall d'entrée donnant accès au séjour avec cuisine ouverte, donnant sur la terrasse.
Il y a également un débarras et deux chambres, dont une avec salle de bains et des toilettes séparées.
Cave au rez-de-chaussée.
Extérieur :
Place de parking à acheter en option, fermée par un portail – 12 500 €.
Caractéristiques :
- Label EPC B
- Terrasse orientée sud-ouest
- Situation centrale
- Électricité conforme
- Libre à l'acte
- Charges futures limitées
Intéressé(e)? Contactez-nous au 02 460 80 46 ou via info@structura.be
Aménagement
Deuxième étage :
Hall d'entrée donnant accès au séjour avec cuisine ouverte, donnant sur la terrasse.
Il y a également un débarras et deux chambres, dont une avec salle de bains et des toilettes séparées.
Cave au rez-de-chaussée.
Extérieur :
Place de parking à acheter en option, fermée par un portail – 12 500 €.
Caractéristiques :
- Label EPC B
- Terrasse orientée sud-ouest
- Situation centrale
- Électricité conforme
- Libre à l'acte
- Charges futures limitées
Intéressé(e)? Contactez-nous au 02 460 80 46 ou via info@structura.be
finances
- Prix
- € 280.000
- Prix parking extérieur
- € 12.500
- Disponibilité
- A l'acte
localisation géographique
- école de l'environnement
- 750 m
confort
- Vidéophone
- Oui
- Ascenseur
- Oui
bâtiment
- Surface habitable
- 93 m²
- Construction
- 2 façades
- Année de construction
- 2012
- étage
- 2
- Nombre d'étages
- 3
terrain
- Orientation terrasse
- Sud-ouest
énergie
- PEB
- 104 kWh/m²
- Code unique PEB
- 2528362
- Vitrage
- Double vitrage
- Inspection de l'électricité
- Oui, conforme
- Chauffage
- Gas
- Type de chauffage
- Individuel
garage
- Parking extérieur
- 1
aménagement
- Chambres
- 2
- Salles de bains
- 1
- Sous-sol
- Oui
téléchargements
information sur l'urbanisme
- Destination
- Zone d'habitat
- Permis de construire
- Oui
- Permis de lotissement
- Non
- Droit de préemption
- Non
- Verdicts
- Non
- Inventaire as built
- Non
- G-score
- B
- P-score
- B