Centraal gelegen en goed onderhouden appartement op de tweedeverdieping, met een begeerde zuidwest-georiënteerd terras. Vlotte bereikbaarheid naar winkels, openbaar vervoer en belangrijke invalswegen.
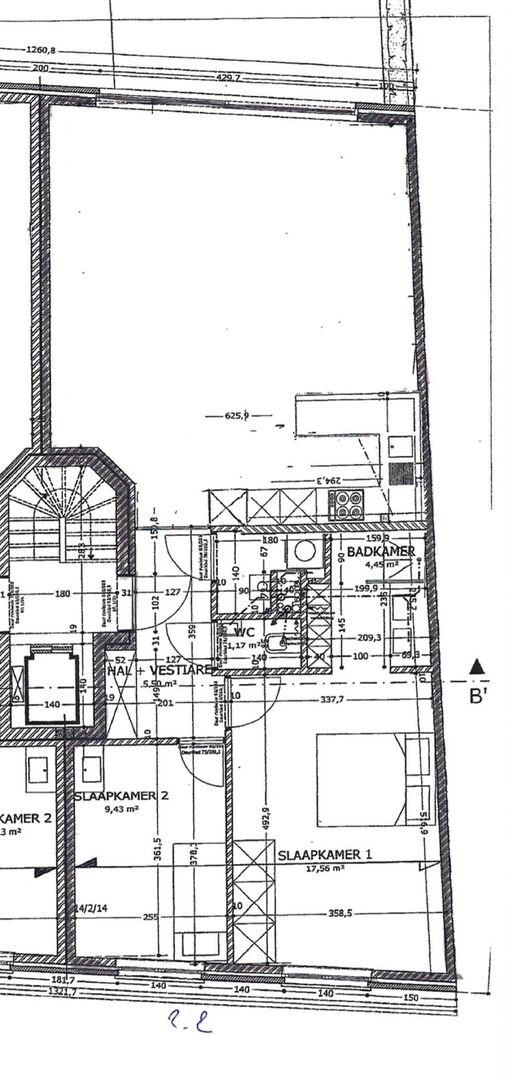
Indeling
Tweede verdieping:
Inkomhal met toegang tot de leefruimte met open keuken, uitgevend op het terras.
Verder zijn er een berging en 2 slaapkamers, waarvan één met badkamer en een aparte toilet.
Kelderberging op het gelijkvloers.
Exterieur:
Autostaanplaats optioneel aan te kopen, afgesloten met poort – €12.500.
Gemeenschappelijke fietsberging.
Karakteristieken:
- EPC-label B
- Zuidwest-georiënteerd terras
- Centrale ligging
- Elektriciteit conform
- Vrij bij akte
- Beperkte toekomstige lasten
Interesse? Contacteer ons via 02 460 80 46 of info@structura.be
Indeling
Tweede verdieping:
Inkomhal met toegang tot de leefruimte met open keuken, uitgevend op het terras.
Verder zijn er een berging en 2 slaapkamers, waarvan één met badkamer en een aparte toilet.
Kelderberging op het gelijkvloers.
Exterieur:
Autostaanplaats optioneel aan te kopen, afgesloten met poort – €12.500.
Gemeenschappelijke fietsberging.
Karakteristieken:
- EPC-label B
- Zuidwest-georiënteerd terras
- Centrale ligging
- Elektriciteit conform
- Vrij bij akte
- Beperkte toekomstige lasten
Interesse? Contacteer ons via 02 460 80 46 of info@structura.be
financieel
- Prijs
- € 280.000
- Prijs parking buiten
- € 12.500
- Beschikbaarheid
- Vanaf akte
ligging
- Omgeving school
- 750 m
comfort
- Videofoon
- Ja
- Lift
- Ja
gebouw
- Bewoonbare oppervlakte
- 93 m²
- Type bebouwing
- Gesloten
- Bouwjaar
- 2012
- Verdieping
- 2
- Verdieping(en)
- 3
terrein
- Oriëntatie terras
- Zuidwest
energie
- EPC
- 104 kWh/m²
- EPC unieke code
- 2528362
- Beglazing
- Dubbele beglazing
- Elektriciteitskeuring
- Ja, conform
- Verwarming
- Gas
- Type verwarming
- Individueel
garage
- Buitenparking
- 1
indeling
- Slaapkamers
- 2
- Badkamers
- 1
- Kelder
- Ja
stedenbouwkundige informatie
- Bestemming
- Woongebied
- Bouwvergunning
- Ja
- Verkavelingsvergunning
- Nee
- Voorkooprecht
- Nee
- Vonnissen
- Nee
- As-builtattest
- Nee
- G-score
- B
- P-score
- B