Souhaitez-vous visiter ce rez-de-chaussée commercial?
Appelez le 02/460 80 46 pour planifier votre rendez-vous, ou envoyez un e-mail à info@structura.be.
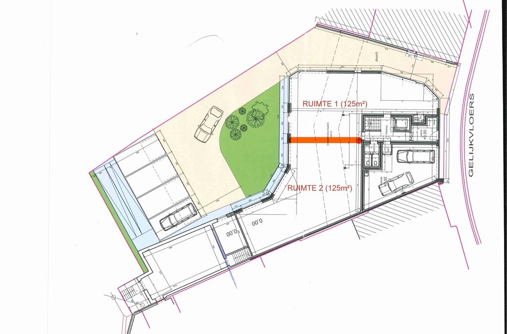
Ce commerce économe en énergie, récemment construit à Opwijk, constitue une excellente opportunité pour les entrepreneurs et les entreprises à la recherche d’un nouvel emplacement sur un site de PREMIER choix!
Le bâtiment se distingue par une architecture contemporaine et robuste, avec une façade élégante en briques grises qui lui confère une image professionnelle.
La large baie vitrée à l’avant baigne l’intérieur de lumière naturelle, créant ainsi un environnement de travail agréable. L’espace intérieur est actuellement en cours d’aménagement, offrant la possibilité unique d’adapter la disposition et les finitions à vos besoins spécifiques et à vos préférences esthétiques.
Idéalement situé au centre d’Opwijk, ce bien bénéficie d’une visibilité exceptionnelle ! De plus, un parking gratuit et facilement accessible se trouve à seulement 50 mètres (voir photo).
En résumé, il s’agit d’un emplacement idéal pour toute entreprise cherchant un espace moderne, flexible et de qualité, situé à un endroit stratégique.
N’attendez plus et planifiez dès aujourd’hui une visite afin de découvrir tout le potentiel de ce rez-de-chaussée polyvalent !
Charges communes : 40 €/mois pour l’entretien des parties communes + précompte immobilier à charge du locataire.
Garantie locative : 3 mois de loyer. PEB en cours d’établissement. Disponibilité à convenir.
Mesures inscrites au registre des mesures : non.
Appelez le 02/460 80 46 pour planifier votre rendez-vous, ou envoyez un e-mail à info@structura.be.
Ce commerce économe en énergie, récemment construit à Opwijk, constitue une excellente opportunité pour les entrepreneurs et les entreprises à la recherche d’un nouvel emplacement sur un site de PREMIER choix!
Le bâtiment se distingue par une architecture contemporaine et robuste, avec une façade élégante en briques grises qui lui confère une image professionnelle.
La large baie vitrée à l’avant baigne l’intérieur de lumière naturelle, créant ainsi un environnement de travail agréable. L’espace intérieur est actuellement en cours d’aménagement, offrant la possibilité unique d’adapter la disposition et les finitions à vos besoins spécifiques et à vos préférences esthétiques.
Idéalement situé au centre d’Opwijk, ce bien bénéficie d’une visibilité exceptionnelle ! De plus, un parking gratuit et facilement accessible se trouve à seulement 50 mètres (voir photo).
En résumé, il s’agit d’un emplacement idéal pour toute entreprise cherchant un espace moderne, flexible et de qualité, situé à un endroit stratégique.
N’attendez plus et planifiez dès aujourd’hui une visite afin de découvrir tout le potentiel de ce rez-de-chaussée polyvalent !
Charges communes : 40 €/mois pour l’entretien des parties communes + précompte immobilier à charge du locataire.
Garantie locative : 3 mois de loyer. PEB en cours d’établissement. Disponibilité à convenir.
Mesures inscrites au registre des mesures : non.
finances
- Prix
- € 1.450 par mois
- Disponibilité
- //maximmo
- Charges locataire
- € 40 p/m
- Bien de rapport
- Oui
localisation géographique
- école de l'environnement
- 249 m
bâtiment
- Surface habitable
- 125 m²
- Année de construction
- 2025
- Nombre d'étages
- 3
terrain
- Jardin d'orientation
- Sud
énergie
- Vitrage
- Double vitrage
- Chauffage
- Pompe à chaleur
- Type de chauffage
- Individuel
aménagement
- Toilettes
- 1