Wenst u dit handelsgelijkvloers te bezoeken, bel dan 02/ 460 80 46 voor het plannen van uw afspraak, of mail naar info@structura.be.
Deze energienzuinige, nieuwgebouwde handelsruimte in Opwijk biedt een uitstekende kans voor ondernemers en bedrijven die op zoek zijn naar een nieuw onderkomen op TOP-locatie!!
Het gebouw straalt een eigentijdse en robuuste architectuur uit, met een gevel van stijlvolle, grijze bakstenen die een professionele uitstraling garanderen.
De royale beglazing aan de voorzijde dompelt de binnenruimte onder in natuurlijk licht, wat zorgt voor een aangename werkomgeving. Het interieur is momenteel in opbouw, wat de unieke mogelijkheid biedt om de indeling en afwerking volledig af te stemmen op uw specifieke behoeften en stijlvoorkeuren.
Gelegen in het centrum van Opwijk, geniet dit pand een enorme visibiliteit!
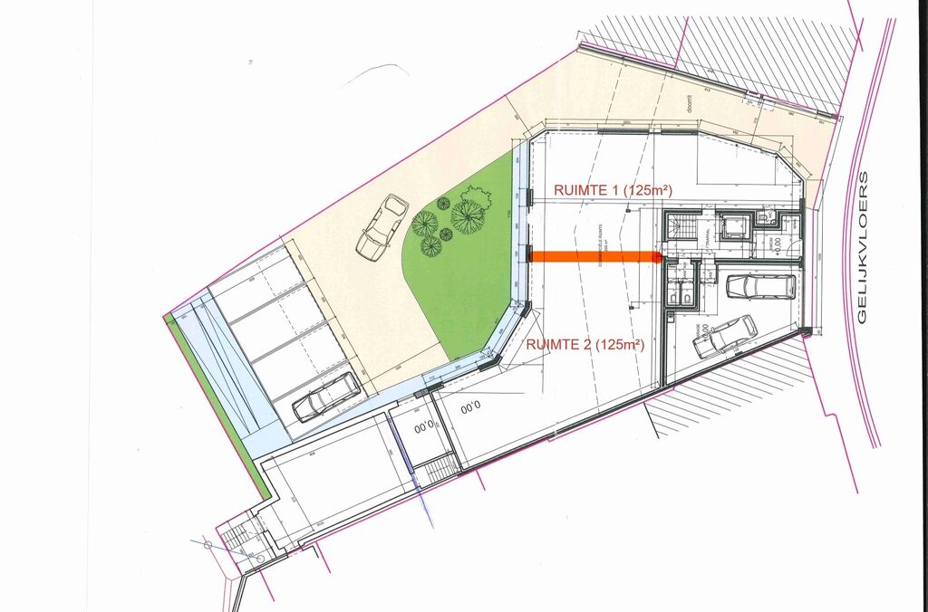
Bovendien bevindt er zich een gratis en vlot bereikbare parking op slechts 50 meter afstand! (zie foto)
Kortom, dit is een uitstekende vestiging voor wie een modern, flexibel en hoogwaardig zakelijk pand zoekt op een strategische locatie.
Wacht niet langer en plan vandaag nog een bezichtiging om de mogelijkheden van dit veelzijdige handelsgeijkvloers te ontdekken!
€40/maand lasten voor onderhoud gemene delen. De onroerende voorheffing is ten laste van de huurder.
3 maanden huurwaarborg. EPB in opmaak. Beschikbaarheid overeen te komen. Maatregelen opgenomen in het Maatregelenregister: nee.
Deze energienzuinige, nieuwgebouwde handelsruimte in Opwijk biedt een uitstekende kans voor ondernemers en bedrijven die op zoek zijn naar een nieuw onderkomen op TOP-locatie!!
Het gebouw straalt een eigentijdse en robuuste architectuur uit, met een gevel van stijlvolle, grijze bakstenen die een professionele uitstraling garanderen.
De royale beglazing aan de voorzijde dompelt de binnenruimte onder in natuurlijk licht, wat zorgt voor een aangename werkomgeving. Het interieur is momenteel in opbouw, wat de unieke mogelijkheid biedt om de indeling en afwerking volledig af te stemmen op uw specifieke behoeften en stijlvoorkeuren.
Gelegen in het centrum van Opwijk, geniet dit pand een enorme visibiliteit!
Bovendien bevindt er zich een gratis en vlot bereikbare parking op slechts 50 meter afstand! (zie foto)
Kortom, dit is een uitstekende vestiging voor wie een modern, flexibel en hoogwaardig zakelijk pand zoekt op een strategische locatie.
Wacht niet langer en plan vandaag nog een bezichtiging om de mogelijkheden van dit veelzijdige handelsgeijkvloers te ontdekken!
€40/maand lasten voor onderhoud gemene delen. De onroerende voorheffing is ten laste van de huurder.
3 maanden huurwaarborg. EPB in opmaak. Beschikbaarheid overeen te komen. Maatregelen opgenomen in het Maatregelenregister: nee.
financieel
- Prijs
- € 1.450 per maand
- Beschikbaarheid
- Overeentekomen
- Lasten huurder
- € 40 p/m
- Opbrengsteigendom
- Ja
ligging
- Omgeving school
- 249 m
gebouw
- Bewoonbare oppervlakte
- 125 m²
- Bouwjaar
- 2025
- Verdieping(en)
- 3
terrein
- Oriëntatie tuin
- Zuid
energie
- Beglazing
- Dubbele beglazing
- Verwarming
- warmtepomp
- Type verwarming
- Individueel
indeling
- Toiletten
- 1