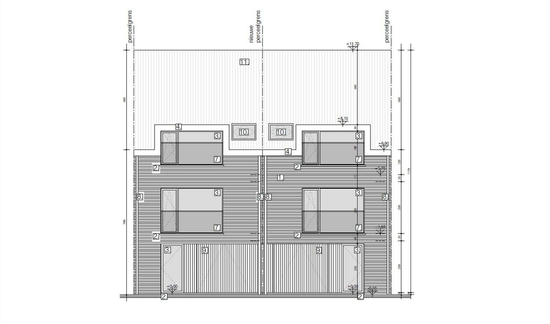
Terrain à bâtir avec permis d’urbanisme pour deux maisons unifamiliales.
À la recherche d’un projet d’investissement ou d’une opportunité résidentielle ?
Ce terrain à bâtir, avec permis d’urbanisme approuvé, permet la construction de deux maisons unifamiliales mitoyennes, chacune avec un garage intégré et un jardin privé.
Chaque maison prévue disposera d’une façade de 6,20 mètres de large. La profondeur de construction maximale est de 12,50 mètres au rez-de-chaussée et de 10 mètres à l’étage.
La superficie totale du terrain est répartie en deux lots de 174,70 m² et 185,20 m².
Chaque jardin bénéficiera d’une terrasse de 19 m², avec une profondeur de 11,33 mètres et 17,06 mètres respectivement.
Les volumes autorisés prévoient une hauteur de corniche de 6,90 mètres et une hauteur au faîte de 11,70 mètres par habitation.
Le permis d’urbanisme est disponible sur demande ou peut être téléchargé.
Intéressé ou envie de faire une offre ?
Contactez Structura au 02/460.80.46 ou via info@structura.be.
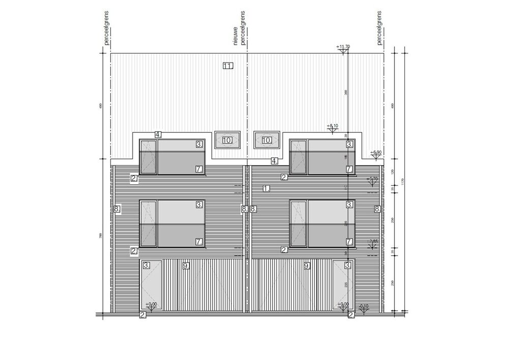
À la recherche d’un projet d’investissement ou d’une opportunité résidentielle ?
Ce terrain à bâtir, avec permis d’urbanisme approuvé, permet la construction de deux maisons unifamiliales mitoyennes, chacune avec un garage intégré et un jardin privé.
Chaque maison prévue disposera d’une façade de 6,20 mètres de large. La profondeur de construction maximale est de 12,50 mètres au rez-de-chaussée et de 10 mètres à l’étage.
La superficie totale du terrain est répartie en deux lots de 174,70 m² et 185,20 m².
Chaque jardin bénéficiera d’une terrasse de 19 m², avec une profondeur de 11,33 mètres et 17,06 mètres respectivement.
Les volumes autorisés prévoient une hauteur de corniche de 6,90 mètres et une hauteur au faîte de 11,70 mètres par habitation.
Le permis d’urbanisme est disponible sur demande ou peut être téléchargé.
Intéressé ou envie de faire une offre ?
Contactez Structura au 02/460.80.46 ou via info@structura.be.
finances
- Prix
- € 225.000
- Disponibilité
- A l'acte
- Revenu cadastral
- € 3
localisation géographique
- école de l'environnement
- 251 m
bâtiment
- Construction
- 2 façades
- Largeur de façade
- 12,40 m
terrain
- Superficie de la parcelle
- 358 m²
- Largeur du terrain
- 12 m
- Profondeur du terrain
- 30 m
- Jardin
- 134 m²
- Jardin d'orientation
- Sud
- Orientation terrasse
- Sud
aménagement
- Terrasse
- Oui
- Superficie terrasse
- 38 m²
téléchargements
information sur l'urbanisme
- Destination
- Zone d'habitat rurale
- Permis de construire
- Oui
- Permis de lotissement
- Non
- Droit de préemption
- Oui
- Verdicts
- Non
- Inventaire as built
- Non
- P-score
- A
- 26 juin 2025