Bouwgrond met omgevingsvergunning voor twee eengezinswoningen.
Op zoek naar een investeringsproject of woonopportuniteit?
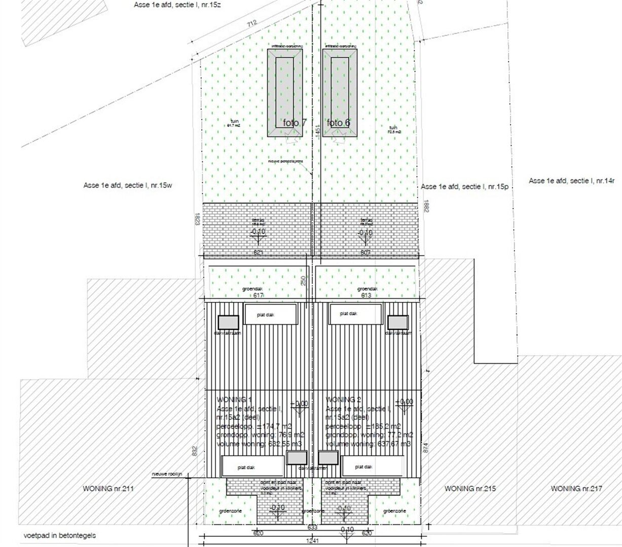
Deze bouwgrond met goedgekeurde omgevingsvergunning biedt de mogelijkheid tot het oprichten van twee gesloten eengezinswoningen, elk met een inpandige garage en een private tuin.
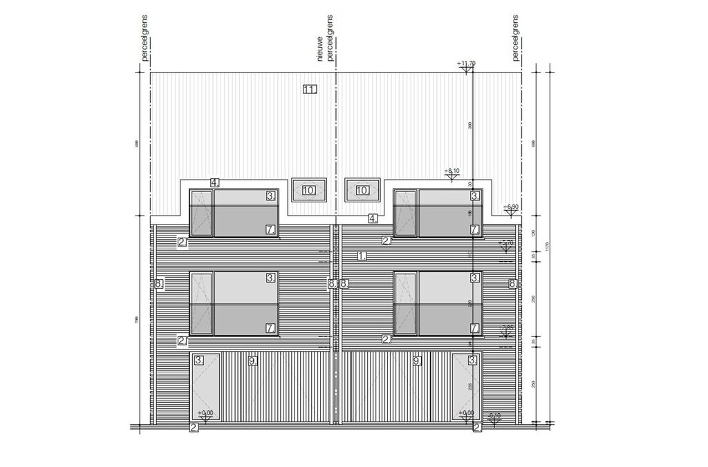
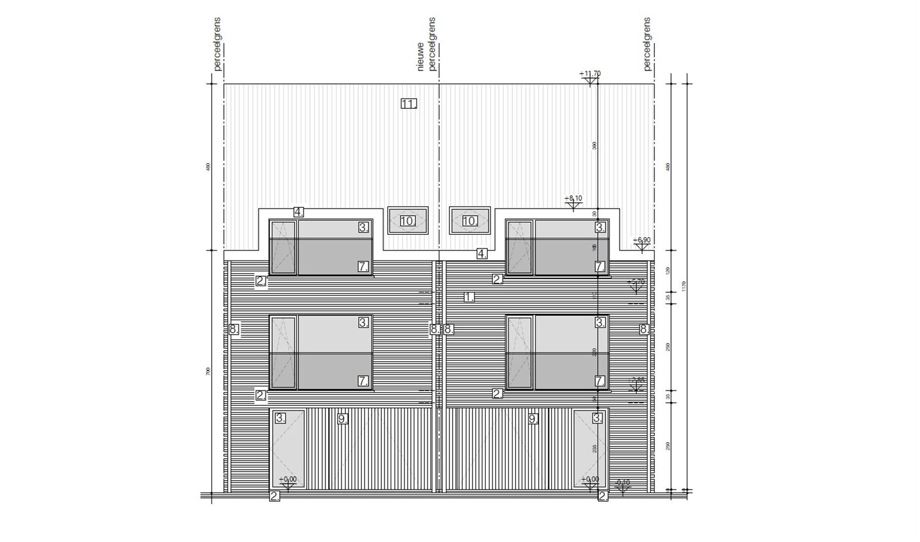
De voorziene woningen hebben een voorgevelbreedte van 6,20 meter. De maximale bouwdiepte bedraagt 12,50 meter op het gelijkvloers en 10 meter op de eerste verdieping.
De totale perceeloppervlakte is verdeeld in twee delen van 174,70 m² en 185,20 m².
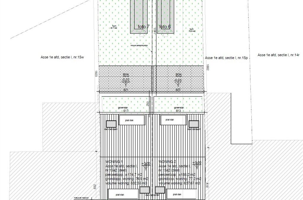
Elke tuin is voorzien van een terras van 19 m², met een diepte van respectievelijk 11,33 meter en 17,06 meter.
De goedgekeurde bouwvolumes voorzien een kroonlijsthoogte van 6,90 meter en een nokhoogte van 11,70 meter per woning.
De omgevingsvergunning is beschikbaar op aanvraag of kan gedownload worden.
Interesse of wenst u een bod uit te brengen?
Contacteer Structura via 02/460.80.46 of info@structura.be.
Op zoek naar een investeringsproject of woonopportuniteit?
Deze bouwgrond met goedgekeurde omgevingsvergunning biedt de mogelijkheid tot het oprichten van twee gesloten eengezinswoningen, elk met een inpandige garage en een private tuin.
De voorziene woningen hebben een voorgevelbreedte van 6,20 meter. De maximale bouwdiepte bedraagt 12,50 meter op het gelijkvloers en 10 meter op de eerste verdieping.
De totale perceeloppervlakte is verdeeld in twee delen van 174,70 m² en 185,20 m².
Elke tuin is voorzien van een terras van 19 m², met een diepte van respectievelijk 11,33 meter en 17,06 meter.
De goedgekeurde bouwvolumes voorzien een kroonlijsthoogte van 6,90 meter en een nokhoogte van 11,70 meter per woning.
De omgevingsvergunning is beschikbaar op aanvraag of kan gedownload worden.
Interesse of wenst u een bod uit te brengen?
Contacteer Structura via 02/460.80.46 of info@structura.be.
financieel
- Prijs
- € 225.000
- Beschikbaarheid
- Vanaf akte
- Kadastraal inkomen
- € 3
ligging
- Omgeving school
- 251 m
gebouw
- Type bebouwing
- Gesloten
- Gevelbreedte
- 12,40 m
terrein
- Perceel oppervlakte
- 358 m²
- Terreinbreedte
- 12 m
- Terreindiepte
- 30 m
- Tuin
- 134 m²
- Oriëntatie tuin
- Zuid
- Oriëntatie terras
- Zuid
indeling
- Terras
- Ja
- Terrasoppervlakte
- 38 m²
downloads
stedenbouwkundige informatie
- Bestemming
- Woongebied met landelijk karakter
- Bouwvergunning
- Ja
- Verkavelingsvergunning
- Nee
- Voorkooprecht
- Ja
- Vonnissen
- Nee
- As-builtattest
- Nee
- P-score
- A
- Datum bodemattest
- 26 juni 2025