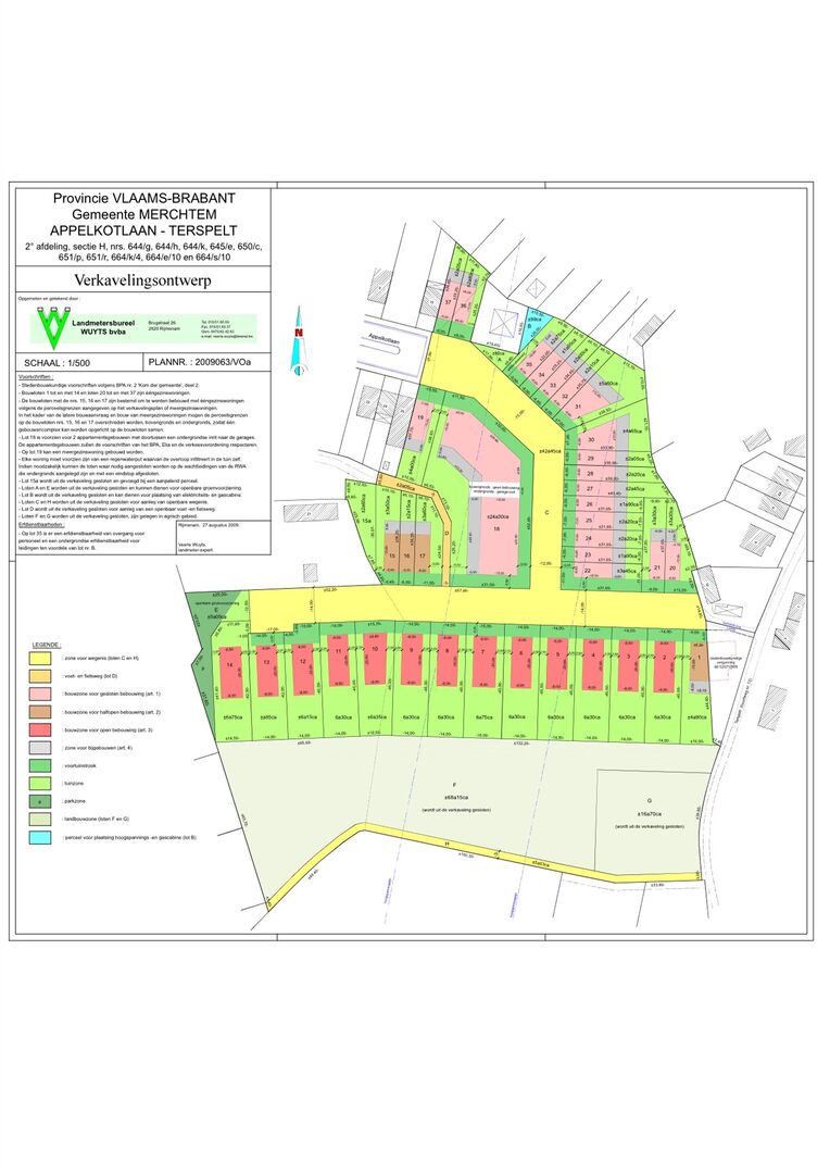
In een groene en rustige verkaveling te Merchtem, aan de Appelkotlaan, bieden wij u deze ruime bouwgrond aan van +/- 11a85ca (LOT 8)
Ideaal geschikt voor het bouwen van een open bebouwing.
Deze locatie combineert rust en bereikbaarheid, met vlotte verbindingen naar het centrum van Merchtem, scholen, winkels en openbaar vervoer.
Achteraan een prachtig uitzicht over de velden.
Bouwvoorschriften:
- Eéngezinswoning
- Maximale bouwdiepte gelijkvloers is 20m
- De dakvorm is vrij voor een open bebouwing. De kroonlijsthoogte en de dakhelling van het voorste dakvlak dienen per bouwblok doorlopend hetzelfde te zijn.
- Er dient minimaal één autostaanplaats te worden voorzien in het hoofd- of bijgebouw
Troeven:
- Bouwgrond voor open bebouwing
- Rustige en residentiële buurt
- Vlotte bereikbaarheid met een mobiscore van 7,7/10
Opmeting door landmeter dient nog te gebeuren
- Opmetingskosten ten laste van de koper.
- Vermelde oppervlaktes onder voorbehoud.
Grijp deze kans om uw droomwoning te realiseren in een aangename omgeving.
Ideaal geschikt voor het bouwen van een open bebouwing.
Deze locatie combineert rust en bereikbaarheid, met vlotte verbindingen naar het centrum van Merchtem, scholen, winkels en openbaar vervoer.
Achteraan een prachtig uitzicht over de velden.
Bouwvoorschriften:
- Eéngezinswoning
- Maximale bouwdiepte gelijkvloers is 20m
- De dakvorm is vrij voor een open bebouwing. De kroonlijsthoogte en de dakhelling van het voorste dakvlak dienen per bouwblok doorlopend hetzelfde te zijn.
- Er dient minimaal één autostaanplaats te worden voorzien in het hoofd- of bijgebouw
Troeven:
- Bouwgrond voor open bebouwing
- Rustige en residentiële buurt
- Vlotte bereikbaarheid met een mobiscore van 7,7/10
Opmeting door landmeter dient nog te gebeuren
- Opmetingskosten ten laste van de koper.
- Vermelde oppervlaktes onder voorbehoud.
Grijp deze kans om uw droomwoning te realiseren in een aangename omgeving.
financieel
- Prijs
- € 228.000
- Beschikbaarheid
- Vanaf akte
gebouw
- Type bebouwing
- Open
- Gevelbreedte
- 8,00 m
terrein
- Perceel oppervlakte
- 1.185 m²
- Terreinbreedte
- 14 m
- Terreindiepte
- 86 m
- Tuin
- 280 m²
- Oriëntatie tuin
- Zuid
stedenbouwkundige informatie
- Bestemming
- Woongebied
- Bouwvergunning
- Nee
- Verkavelingsvergunning
- Ja
- Voorkooprecht
- Nee
- Vonnissen
- Nee
- P-score
- D