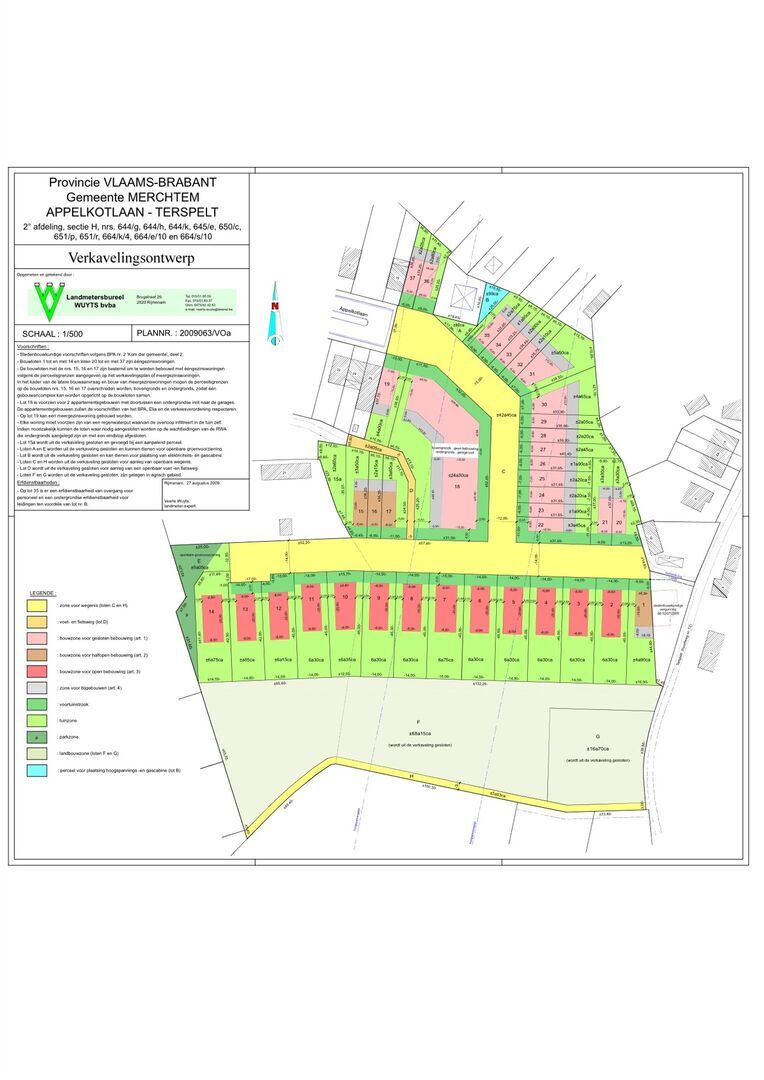
Dans un lotissement verdoyant et calme à Merchtem, situé dans l'Appelkotlaan, nous vous proposons ce spacieux terrain à bâtir de +/- 11a85ca (LOT 8)
Idéal pour la construction d’une maison 4 façades.
Ce terrain bénéficie d’un emplacement combinant tranquillité et accessibilité, avec des connexions aisées vers le centre de Merchtem, les écoles, les commerces et les transports en commun.
À l’arrière, vous profitez d’une vue magnifique sur les champs.
Prescriptions urbanistiques :
- Habitation unifamiliale
- Profondeur maximale de construction au rez-de-chaussée: 20 m
- La forme du toit est libre pour une maison 4 façades. Toutefois, la hauteur de la corniche et la pente du toit avant doivent être uniformes par îlot bâti.
- Au moins une place de parking doit être prévue, soit dans le bâtiment principal, soit dans une annexe.
Caractéristiques:
- Terrain pour construction 4 façades
- Quartier résidentiel calme
- Bonne accessibilité avec un Mobiscore de 7,7/10
Mesurage par un géomètre à effectuer
-
Frais de mesurage à charge de l'acquéreur.
- Surfaces mentionnées sous réserve.
Saisissez cette opportunité unique pour construire la maison de vos rêves dans un cadre agréable.
Idéal pour la construction d’une maison 4 façades.
Ce terrain bénéficie d’un emplacement combinant tranquillité et accessibilité, avec des connexions aisées vers le centre de Merchtem, les écoles, les commerces et les transports en commun.
À l’arrière, vous profitez d’une vue magnifique sur les champs.
Prescriptions urbanistiques :
- Habitation unifamiliale
- Profondeur maximale de construction au rez-de-chaussée: 20 m
- La forme du toit est libre pour une maison 4 façades. Toutefois, la hauteur de la corniche et la pente du toit avant doivent être uniformes par îlot bâti.
- Au moins une place de parking doit être prévue, soit dans le bâtiment principal, soit dans une annexe.
Caractéristiques:
- Terrain pour construction 4 façades
- Quartier résidentiel calme
- Bonne accessibilité avec un Mobiscore de 7,7/10
Mesurage par un géomètre à effectuer
-
Frais de mesurage à charge de l'acquéreur.
- Surfaces mentionnées sous réserve.
Saisissez cette opportunité unique pour construire la maison de vos rêves dans un cadre agréable.
finances
- Prix
- € 228.000
- Disponibilité
- A l'acte
bâtiment
- Construction
- 4 façades
- Largeur de façade
- 8,00 m
terrain
- Superficie de la parcelle
- 1.185 m²
- Largeur du terrain
- 14 m
- Profondeur du terrain
- 86 m
- Jardin
- 280 m²
- Jardin d'orientation
- Sud
téléchargements
information sur l'urbanisme
- Destination
- Zone d'habitat
- Permis de construire
- Non
- Permis de lotissement
- Oui
- Droit de préemption
- Non
- Verdicts
- Non
- P-score
- D