HUMBEEK
Terrain à bâtir
€ 641.500
À VENDRE : Terrain à bâtir avec maison à construire – Benedestraat, Humbeek (Grimbergen)
Vous recherchez une nouvelle construction dans un environnement calme, où le confort, la luminosité et l’espace sont au rendez-vous?
Bienvenue dans la Benedestraat, une rue agréable et peu fréquentée située dans le charmant village de Humbeek (Grimbergen).
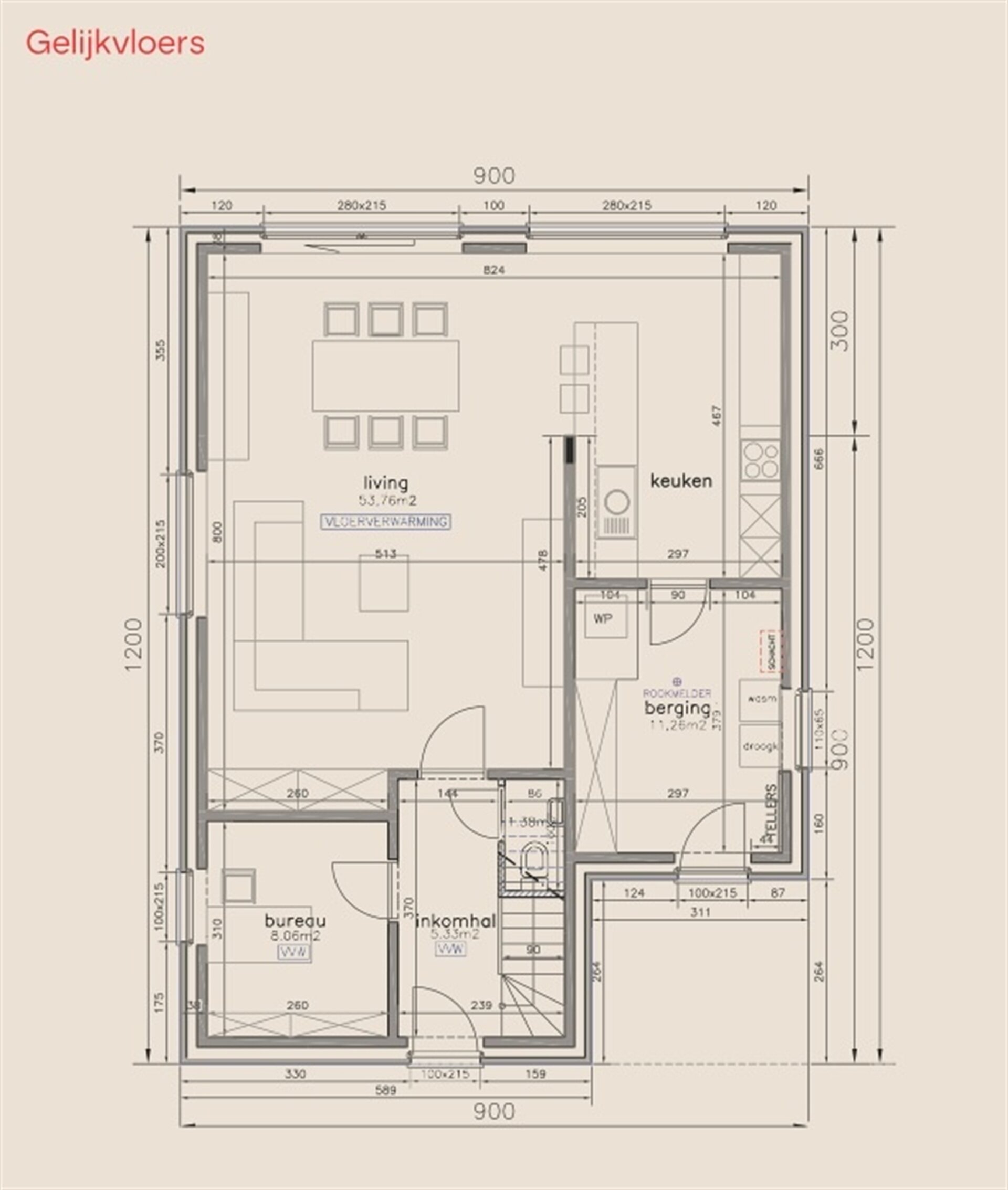
Ce terrain à bâtir (lot 2) d’une superficie de 8 ares 39 centiares est proposé avec un projet de maison quatre façades comprenant 3 chambres.
La maison sera construite conformément aux prescriptions urbanistiques en vigueur et bénéficie d’une orientation ouest, idéale pour profiter du soleil jusque tard en soirée.
L’environnement est parfait pour ceux qui recherchent la tranquillité sans renoncer à la proximité des commodités.
Écoles, commerces, installations sportives et transports en commun se trouvent à quelques minutes, offrant un équilibre parfait entre vie à la campagne et accessibilité.
Caractéristiques du projet
- Maison quatre façades
- 3 chambres
- Toit plat
- Jardin orienté à l’ouest
Le prix indiqué comprend le terrain et la maison à construire, hors TVA, droits d’enregistrement, honoraires d’architecte, les frais de mesurage et d’acte de lotissement, ...
Une opportunité unique
Ce projet vous offre la possibilité de réaliser une nouvelle construction complète dans un cadre exceptionnel à Humbeek.
Ne manquez pas cette occasion unique et construisez votre avenir à Humbeek !